Property Details

925 Yuill Street SE
Medicine Hat (A2249786)

$129,000
Loading Listing...

Loan Term
Interest Rate
Loan Amount
Annual Tax
Ann. Insurance

* Amounts are estimates only. Final payment amounts may vary.

Description

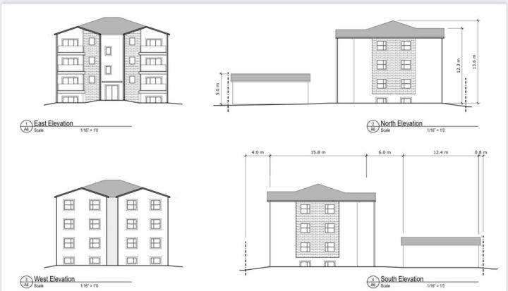
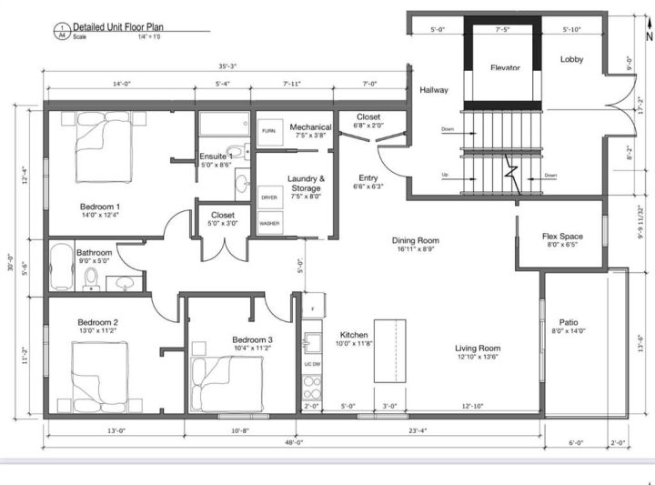
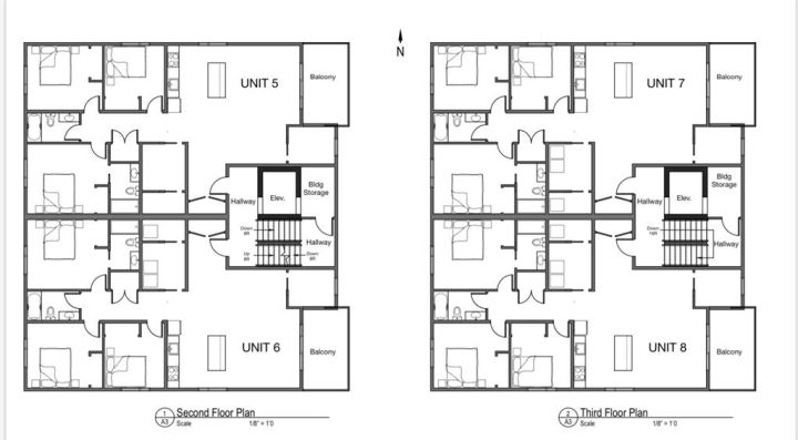
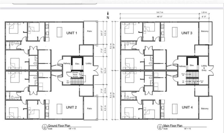
Rare opportunity to secure a 10,400 sq ft cleared parcel in Medicine Hat, ready for immediate development. Currently zoned R3, this property offers exceptional flexibility—perfect for duplexes, townhomes, or other multi-family projects. With potential to rezone for mixed-use development, the possibilities are endless. Surrounded by mature trees, this lot also provides the ideal setting for a dream single-family home, while still leaving plenty of room for a spacious yard and garage. The plans/drawings pictured have been preliminarily approved, would be subject to final approval.

Property details

Basic Info

MLS® #
A2249786
Property Type:
Land
Subtype:
Residential Land
Subdivision:
River Flats
Price
$129,000
Sale/Lease:
For Sale

Building Info

Garage:
No
Basement:
No
Inclusions:
NA

Lot / Land Info

Lot Size:
0.24 acres
Lot Dimensions:
39.62 x 24.37 x 39.62 x 24.38
Zoning:
R-MD

Listing Info

Possession:
Immediate
Days on Market:
31
Your Agent
  • Daniel Cram

    Sutton Group Grande Prairie
    780-814-9482

    Email

    Ask a question
    • This site is protected by reCAPTCHA and the Google Privacy Policy and Terms of Service apply.
    Share This Listing
    Related Properties
    Categories
    • No categories