Property Details

107, 1424 Southview Drive SE
Medicine Hat (A2268309)

$6,000 per month
2,282 ft²
Loading Listing...

Loan Term
Interest Rate
Loan Amount
Annual Tax
Ann. Insurance

* Amounts are estimates only. Final payment amounts may vary.

Description

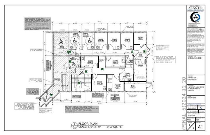
A new medical clinic in Medicine Hat is available for lease to family physicians who are interested in a move-in ready, fully renovated, high quality space. Located beside a pharmacy in a busy area of the city, this clinic would make a fantastic walk-in location! This lease would be through the leaseholder as a sub-tenancy and is being offered at $6,000.00 per month, including utilities. Patient exam beds and waiting area furniture shall be provided as shown in a few AI generated photos attached to show an idea of how it will look. This clinic has 10 exam rooms, a welcoming reception/waiting area and is easily accessible with the latest automatic door operators on the entry and the patient washroom. It is beautifully done and ready for physicians to start their practice in. Final touches on this amazing space will be completed in the next couple weeks. Layout is similar to how it is but some changes have been made to location of washrooms and a couple exam rooms.

Property details

Basic Info

MLS® #
A2268309
Property Type:
Commercial
Subtype:
Mixed Use
Subdivision:
Southview-Park Meadows
Price
$6,000 per month
Sale/Lease:
For Lease
Size:
2,282 sq.ft.
Year Built:
2002 (24 years old)

Building Info

Structure Type:
Office
Garage:
No
Fence:
Basement:
No
Inclusions:
See Remarks

Lot / Land Info

Zoning:
MU

Listing Info

Possession:
Immediate
Days on Market:
25
Your Agent
  • Daniel Cram

    Sutton Group Grande Prairie
    780-814-9482

    Email

    Ask a question
    • This site is protected by reCAPTCHA and the Google Privacy Policy and Terms of Service apply.
    Share This Listing
    Related Properties
    Categories
    • No categories