Property Details

5017 49A Street
Sedgewick (A2269329)

$259,900
2
2
1,144 ft²
Loading Listing...

Loan Term
Interest Rate
Loan Amount
Annual Tax
Ann. Insurance

* Amounts are estimates only. Final payment amounts may vary.

Description

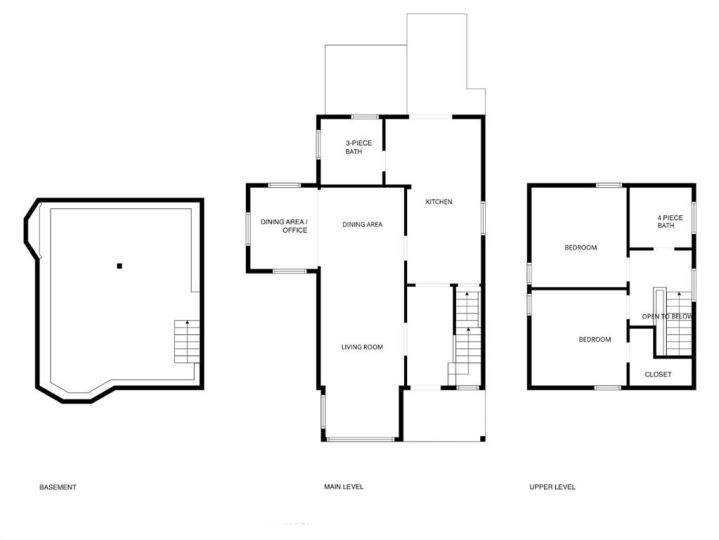
Welcome to this charming 1.5-storey home that’s full of character and move-in ready! Featuring 2 bedrooms and 2 bathrooms, this property offers comfort, practicality, and small-town living at its best. The main bathroom is conveniently located near the back entrance, complete with a shower — perfect for cleaning up after a day in the garden. The spacious kitchen is ideal for cooking and entertaining, flowing easily into the large living and dining area, where beautiful stained glass windows add a touch of timeless charm. Downstairs, you’ll find laundry in the basement, while outside, a detached garage with an automated door and concrete pad provides excellent winter parking. The fenced backyard offers plenty of space, with the option to reconfigure fencing for RV parking. The yard is a gardener’s delight, featuring fruit trees and shrubs — including blackberry, cherry, and raspberry — perfect for anyone who enjoys homegrown goodness. Located in the welcoming community of Sedgewick, this home is within walking distance to Central High Sedgewick Public School and close to everything the town has to offer — shopping, a golf course, a lake campground, and more. Plus, with hospital services just 10 minutes away in Killam, this location truly has it all.

Property details

Basic Info

MLS® #
A2269329
Property Type:
Residential
Subtype:
Detached
Subdivision:
Sedgewick
Price
$259,900
Sale/Lease:
For Sale
Size:
1,144 sq.ft.
Bedrooms:
2
Bathrooms:
2
Year Built:
1917 (109 years old)

Building Info

Structure Type:
House
Building Style:
1 and Half Storey
Garage:
Yes
Parking:
Single Garage Detached
Fence:
Fenced
Basement:
Partial
Features:
See Remarks
Inclusions:
Refrigerator, stove, washer and dryer.
Appliances:
Dryer, Refrigerator, Stove(s), Washer
Laundry:
In Basement
Exterior Features:
Other
Patio/Porch Features:
Deck, Front Porch

Neighborhood Info

Nearby Amenities:
Golf, Park, Playground, Schools Nearby, Shopping Nearby

Lot / Land Info

Lot Size:
0.16 acres
Lot Features:
Back Yard, Fruit Trees/Shrub(s), Garden
Zoning:
R2

Materials & Systems

Roof:
Asphalt Shingle, Metal
Exterior:
Vinyl Siding,Wood Frame,Wood Siding
Floors:
Carpet, Laminate, Tile
Foundation:
Other, Poured Concrete
Heating:
Forced Air
Cooling:
None
Amenities:
Golf, Park, Playground, Schools Nearby, Shopping Nearby

Listing Info

Possession:
Immediate,Negotiable
Media & Video

Experience this property!

Virtual Tour
Your Agent
  • Daniel Cram

    Sutton Group Grande Prairie
    780-814-9482

    Email

    Ask a question
    • This site is protected by reCAPTCHA and the Google Privacy Policy and Terms of Service apply.
    Share This Listing
    Related Properties
    Categories
    • No categories