Property Details

Unit 8, 1925 39 Street NE
Calgary (A2277382)

$13 per sq.ft.
4,105 ft²
Loading Listing...

Loan Term
Interest Rate
Loan Amount
Annual Tax
Ann. Insurance

* Amounts are estimates only. Final payment amounts may vary.

Description

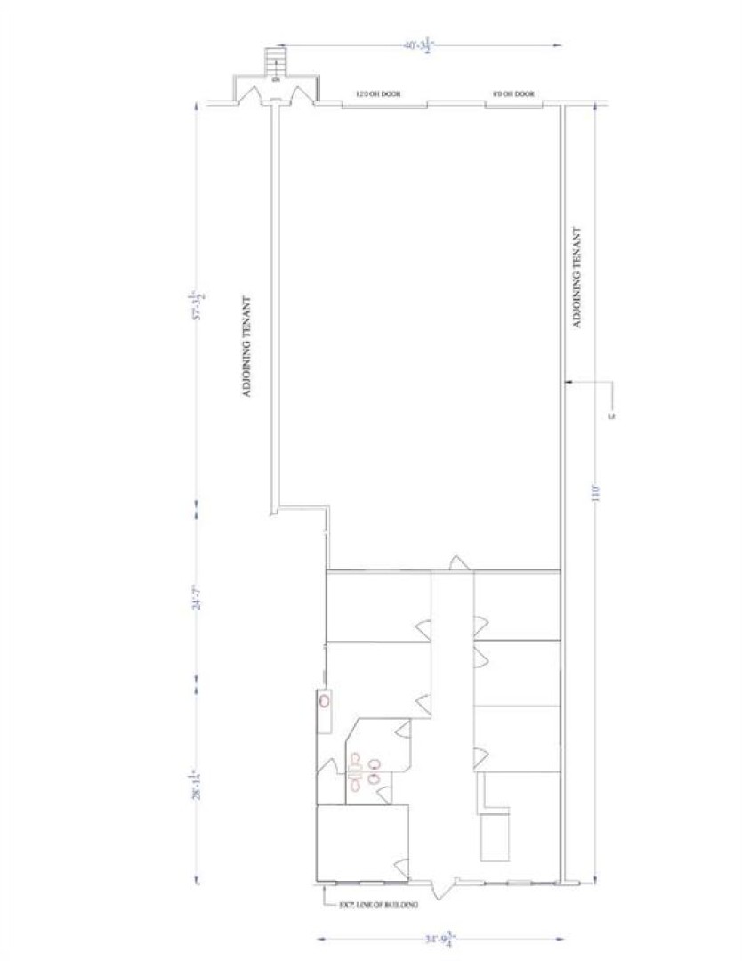
4,105 SF industrial bay in a prime Northeast location near 39 Avenue and 19 Street NE. The office area totals approximately 1,718 SF and includes a reception area, five private offices, a kitchenette/lunchroom, and washrooms, including one barrier-free washroom. The 2,387 SF warehouse offers a functional wide layout (approximately 39 ft wide x 65 ft deep) with 18 ft clear ceiling height, 100 amps of power (TBV), one drive-in door (12 ft W x 14 ft H), and one dock door (8 ft W x 10 ft H). Conveniently located near 32 Avenue NE, with close proximity to McKnight Boulevard NE and Deerfoot Trail NE, and surrounded by restaurants, cafés, and retailers. Available immediately. The lease rate is $13.00 PSF with step-ups, plus operating costs of $8.27 PSF (estimated 2025), for a gross rate of $21.27 PSF. This equates to approximately $7,300 per month, plus utilities and GST. Please note: no automotive use permitted.

Property details

Basic Info

MLS® #
A2277382
Property Type:
Commercial
Subtype:
Industrial
Subdivision:
North Airways
Price
$13 per sq.ft.
Sale/Lease:
For Lease
Size:
4,105 sq.ft.
Year Built:
1977 (49 years old)

Building Info

Structure Type:
Industrial
Garage:
No
Fence:
Basement:
No
Inclusions:
n/a

Listing Info

Possession:
Immediate
Your Agent
  • Daniel Cram

    Sutton Group Grande Prairie
    780-814-9482

    Email

    Ask a question
    • This site is protected by reCAPTCHA and the Google Privacy Policy and Terms of Service apply.
    Share This Listing
    Related Properties
    Categories
    • No categories