Property Details

560 Walgrove Boulevard SE
Calgary (A2259381)

$949,900
4
3+1
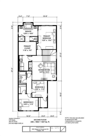
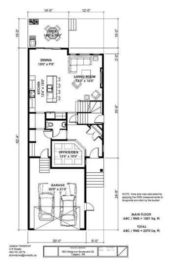
2,370 ft²
Loading Listing...

Loan Term
Interest Rate
Loan Amount
Annual Tax
Ann. Insurance

* Amounts are estimates only. Final payment amounts may vary.

Description

WHEN A HOUSE STARTS OUT AS A SHOWHOME, YOU NOTICE—THE DETAILS ARE SHARPER, THE FINISHES BOLDER. This Homes by Avi build carries the kind of features you rarely see offered together—deliberate, dramatic, and designed to impress. Now, instead of open house hours, it’s ready for its first owner, with possession at the END OF NOVEMBER. The main floor begins with an office that doesn’t apologize for being front and center. Framed in GLASS-PANEL WALLS and finished in a bold black palette with a COFFERED CEILING overhead, it’s designed to be on display—equal parts workspace and showpiece. From there, herringbone-pattern LUXURY VINYL PLANK flooring pulls you through the open plan: past the WATERFALL QUARTZ ISLAND and Silgranit sink in the kitchen, into a dining area that opens through a three-panel glass door to the 14’ x 10’ DECK with gas line. The living room centers on a FIREPLACE FEATURE WALL clad in vertical wood slats stained to match the dark kitchen cabinetry, dramatic and grounding all at once. Upstairs, the BONUS ROOM vaults high, finished with a wet bar and fridge so the space lives just as easily for movie marathons as it does for casual evenings in. The master bedroom takes luxury further: DUAL VANITIES frame a SOAKER TUB beneath a wide window, paired with a glass shower that feels more spa than standard. From there, the flow continues into a walk-in closet fitted with CUSTOM WOOD SYSTEMS and large enough for a central bench—then on to a laundry room finished with COUNTER, SINK, AND CABINETRY that look as considered as the rest of the home. Two more bedrooms, each with their own walk-in closet, and a full bath round out the level. The lower level is fully finished as a LEGAL BASEMENT SUITE, complete with its own kitchen, FULL APPLIANCE PACKAGE, laundry, and private entry. Independent systems—including a sub-panel and second furnace—make it practical and comfortable for multigenerational living, long-term guests, or rental income. This was never a standard build. A SPRINKLER SYSTEM, TANKLESS HOT WATER, 200-amp electrical service, GARAGE MAN DOOR, and AIR CONDITIONING confirm its showhome pedigree, while glass stair railings and designer finishes tie every floor together in one cohesive statement. Set on a SOUTH-FACING LOT in Walden, the location matches the home’s intent. JUST A BLOCK FROM WALDEN PONDS, PATHWAYS, AND PARKS, it gives you instant access to trails and greenspace, while schools, shopping, and dining sit minutes away. Quick routes via Macleod Trail and Stoney keep the rest of the city in easy reach. Showhome polish. Real-life readiness. This one is complete from top to bottom.

Property details

Basic Info

MLS® #
A2259381
Property Type:
Residential
Subtype:
Detached
Subdivision:
Walden
Price
$949,900
Sale/Lease:
For Sale
Size:
2,370 sq.ft.
Bedrooms:
4
Bathrooms:
3 full / 1 half
Year Built:
2023 (2 years old)

Building Info

New Construction:
Yes
Structure Type:
House
Building Style:
2 Storey
Garage:
Yes
Parking:
Concrete Driveway, Double Garage Attached, Garage Door Opener, Garage Faces Front, Insulated
Basement:
Finished, Full, Separate/Exterior Entry, Suite
Features:
Breakfast Bar, Built-in Features, Chandelier, Double Vanity, High Ceilings, Kitchen Island, Open Floorplan, Pantry, Quartz Counters, Recessed Lighting, See Remarks, Separate Entrance, Soaking Tub, Tankless Hot Water, Vaulted Ceiling(s), Walk-In Closet(s), Wet Bar, Wired for Data, Wired for Sound
Fireplaces:
1
Inclusions:
Basement Dishwasher, Basement Electric Range, Basement Microwave Hood Fan, Basement Refrigerator, Basement Washer/Dryer Stacked
Appliances:
Bar Fridge, Central Air Conditioner, Dishwasher, Dryer, Garage Control(s), Gas Range, Microwave, Range Hood, Refrigerator, Washer, Window Coverings
Laundry:
Electric Dryer Hookup, In Basement, Laundry Room, Multiple Locations, See Remarks, Upper Level, Washer Hookup
Exterior Features:
BBQ gas line, Lighting, Private Entrance, Private Yard
Patio/Porch Features:
Deck

Neighborhood Info

Nearby Amenities:
Park, Playground, Schools Nearby, Shopping Nearby, Walking/Bike Paths

Lot / Land Info

Lot Size:
0.09 acres
Lot Features:
Back Yard, Front Yard, Interior Lot, Landscaped, Lawn, Rectangular Lot
Zoning:
R-G

Materials & Systems

Roof:
Asphalt Shingle
Exterior:
Cement Fiber Board,Mixed,Stone,Vinyl Siding,Wood Frame
Floors:
Carpet, Tile, Vinyl Plank
Foundation:
Poured Concrete
Heating:
High Efficiency, Forced Air, Humidity Control, Natural Gas, Zoned
Cooling:
Central Air, Full
Amenities:
Park, Playground, Schools Nearby, Shopping Nearby, Walking/Bike Paths

Listing Info

Possession:
Upon Completion
Media & Video

Experience this property!

Virtual Tour
Your Agent
  • Daniel Cram

    Sutton Group Grande Prairie
    780-814-9482

    Email

    Ask a question
    • This site is protected by reCAPTCHA and the Google Privacy Policy and Terms of Service apply.
    Share This Listing
    Related Properties
    Categories
    • No categories