Property Details

5124 52 Avenue S
Viking (A2271035)

$119,000
4
1+1
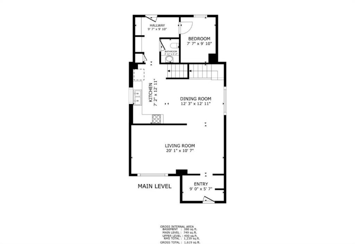
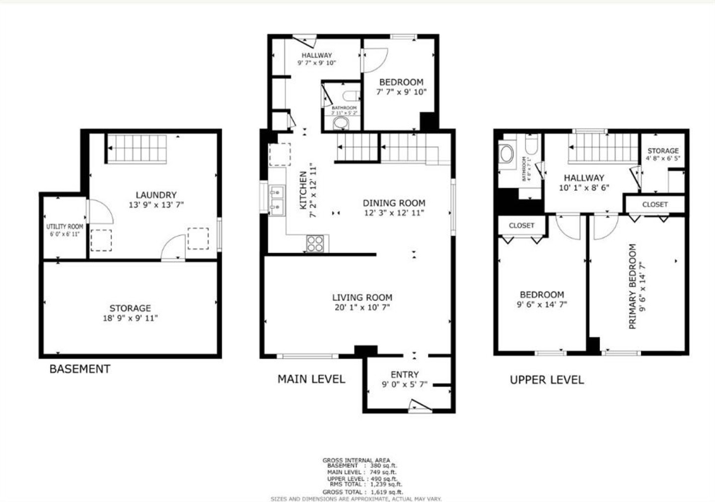
1,239 ft²
Loading Listing...

Loan Term
Interest Rate
Loan Amount
Annual Tax
Ann. Insurance

* Amounts are estimates only. Final payment amounts may vary.

Description

Looking For a Wonderful Updated Starter Home in A Great Community? Viking, AB could be what you have been searching for. This home has 3 beds and 2 baths with space for a family to enjoy their activities outside. In the kitchen we have a Brand New Stove and Stand Up Freezer. Plant your future garden in the fenced spacious backyard and build your kids a playground. Park your vehicle or Trailer in the back alley access RV parking area. Minutes from the Hockey Arena, library, my favourite restaurants. Bank, Attorney, hospital, curling, grocery and many more amenities is the reason to call Viking your home! People are friendly, kids love it here. Welcome Home!

Property details

Basic Info

MLS® #
A2271035
Property Type:
Residential
Subtype:
Detached
Subdivision:
NONE
Price
$119,000
Sale/Lease:
For Sale
Size:
1,239 sq.ft.
Bedrooms:
4
Bathrooms:
1 full / 1 half
Year Built:
1949 (77 years old)

Building Info

Structure Type:
House
Building Style:
1 and Half Storey
Garage:
Yes
Parking:
Alley Access, Enclosed, Garage Faces Rear, Single Garage Detached
Fence:
Fenced
Basement:
Full
Features:
High Ceilings, Storage
Inclusions:
N/A
Appliances:
Dryer, Freezer, Refrigerator, Stove(s), Washer
Laundry:
In Basement
Exterior Features:
Balcony, Fire Pit, Garden, Private Yard
Patio/Porch Features:
Balcony(s)

Neighborhood Info

Nearby Amenities:
Other, Schools Nearby, Shopping Nearby

Lot / Land Info

Lot Features:
Back Yard, City Lot, Garden, Lawn
Zoning:
R

Materials & Systems

Roof:
Asphalt
Exterior:
Wood Frame
Floors:
Laminate
Foundation:
Other
Heating:
Forced Air, Natural Gas
Cooling:
None
Amenities:
Other, Schools Nearby, Shopping Nearby

Listing Info

Possession:
30 Days / Neg
Days on Market:
70
Media & Video

Experience this property!

Virtual Tour
Your Agent
  • Daniel Cram

    Sutton Group Grande Prairie
    780-814-9482

    Email

    Ask a question
    • This site is protected by reCAPTCHA and the Google Privacy Policy and Terms of Service apply.
    Share This Listing
    Related Properties
    Categories
    • No categories