Property Details

5230 44 Avenue
Spirit River (A2273553)

$999,900
22,177 ft²
Loading Listing...

Loan Term
Interest Rate
Loan Amount
Annual Tax
Ann. Insurance

* Amounts are estimates only. Final payment amounts may vary.

Description

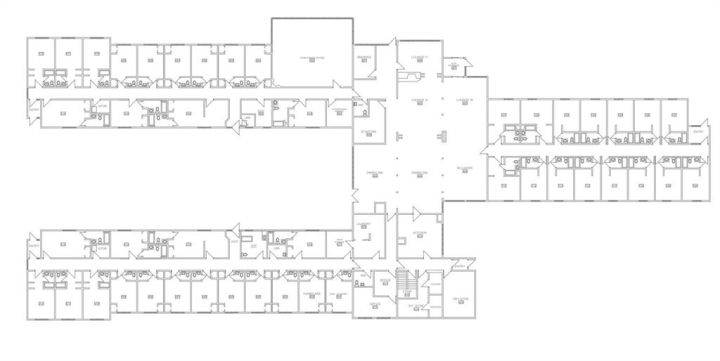
Pleasant View Lodge in Spirit River, Alberta, presents an exceptional opportunity for investors and assisted-living operators to acquire a well-maintained, institutional-quality 42-suite care facility situated on 2.32 acres of R4 High Density Residential land. This 22,177 sq. ft. building has been consistently upgraded, including newer boilers (2015), hot water tanks (2022/2023), modern double-glazed vinyl windows, and a torch-on roof completed in 2018. Now vacant and ready for redevelopment or immediate occupancy, the property features private bathrooms in every suite—26 with full showers or tubs—plus two staff washrooms, two assisted bathing rooms, a commercial kitchen with industrial equipment, extensive common areas, commercial laundry, office space, a dedicated hair salon, and a 26’x40’ maintenance shop. With ample parking, mature trees, and a peaceful setting near parks and services, and located just 50 minutes from Grande Prairie with direct access to essential amenities, this property offers exceptional potential for seniors housing, specialized care, workforce accommodation, or multi-suite residential conversion.

Property details

Basic Info

MLS® #
A2273553
Property Type:
Commercial
Subtype:
Multi Family
Subdivision:
NONE
Price
$999,900
Sale/Lease:
For Sale
Size:
22,177 sq.ft.
Year Built:
1960 (66 years old)

Building Info

Structure Type:
Other
Building Name:
Pleasant View Lodge
Garage:
No
Fence:
Basement:
No
Inclusions:
tbd

Lot / Land Info

Lot Size:
2.32 acres
Zoning:
R4

Materials & Systems

Roof:
Other
Exterior:
Concrete,Wood Frame
Foundation:
Poured Concrete
Heating:
Boiler

Listing Info

Possession:
Immediate
Days on Market:
35
Media & Video

Experience this property!

Virtual Tour
Your Agent
  • Daniel Cram

    Sutton Group Grande Prairie
    780-814-9482

    Email

    Ask a question
    • This site is protected by reCAPTCHA and the Google Privacy Policy and Terms of Service apply.
    Share This Listing
    Related Properties
    Categories
    • No categories