Property Details

9512 112 Avenue
Clairmont (A2280625)

$469,900
1,254 ft²
Loading Listing...

Loan Term
Interest Rate
Loan Amount
Annual Tax
Ann. Insurance

* Amounts are estimates only. Final payment amounts may vary.

Description

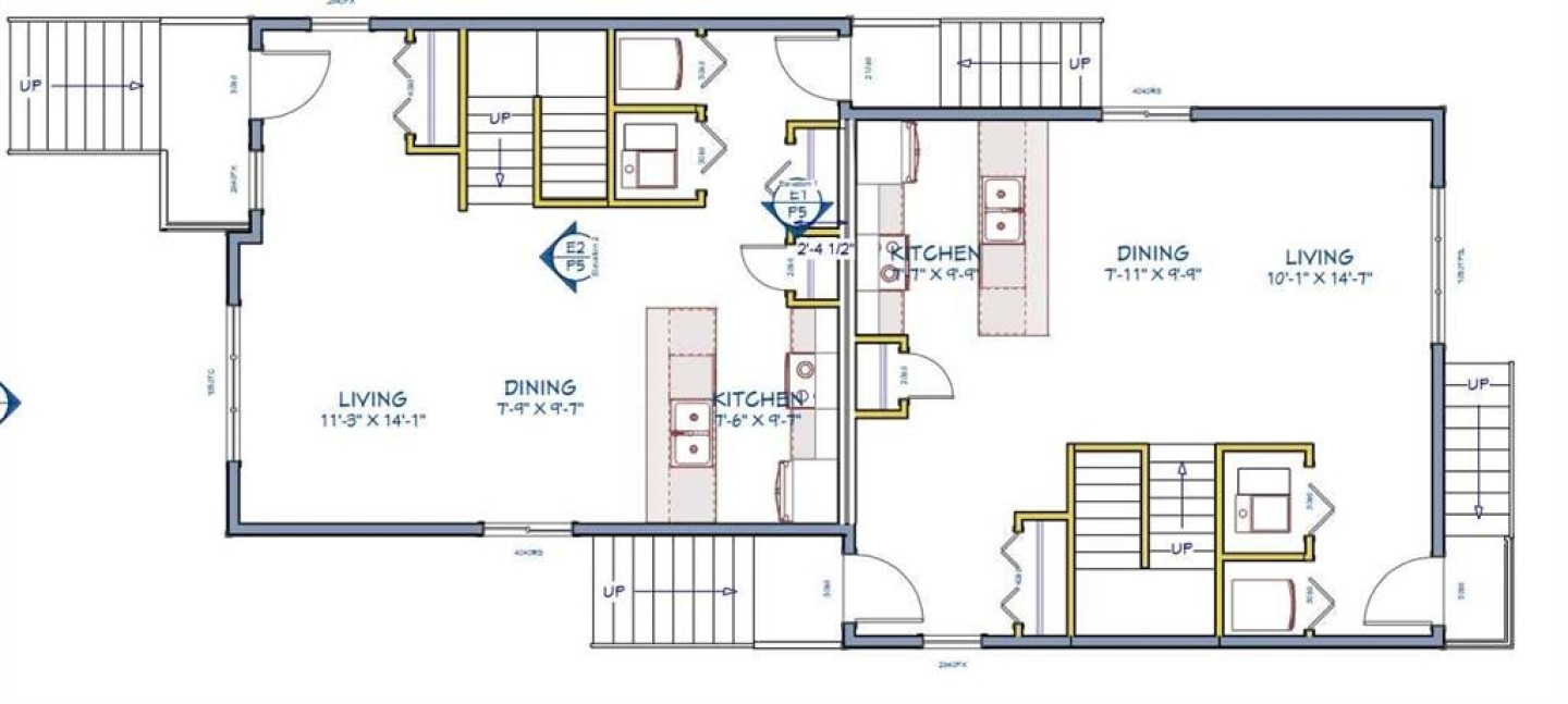
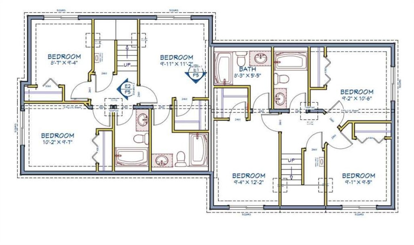
Front-to-back cash flowing duplex located in the low property tax zone of Clairmont, just minutes north of Grande Prairie, offering an excellent investment opportunity with strong rental income. The property is currently fully rented for a total of $4,050 per month with utilities included, providing immediate and reliable cash flow. Each of the two nearly identical suites features three bedrooms and two full bathrooms, with functional layouts that include kitchen, living, and dining areas on the main floor and bedrooms and bathrooms on the lower level. Both suites have private entrances, in-suite laundry, and separate furnaces and hot water tanks, allowing for efficient operation and simplified management. An oversized front parking pad accommodates up to four vehicles, enhancing tenant appeal and long-term rental demand in this growing bedroom community. Pics are samples from same plan.

Property details

Basic Info

MLS® #
A2280625
Property Type:
Multi-Family
Subtype:
Full Duplex
Subdivision:
NONE
Price
$469,900
Sale/Lease:
For Sale
Size:
1,254 sq.ft.
Year Built:
2019 (7 years old)

Building Info

Builder:
Derksen Builders
Structure Type:
Duplex
Building Style:
Attached-Front/Back, Bungalow
Garage:
No
Parking:
Parking Pad
Basement:
Full
Features:
Laminate Counters, No Animal Home, No Smoking Home
Inclusions:
appliances for both suites
Appliances:
Other
Laundry:
Main Level

Neighborhood Info

Nearby Amenities:
Playground

Lot / Land Info

Lot Size:
0.10 acres
Lot Features:
Landscaped, Rectangular Lot
Water:
Public
Sewer:
Sewer
Utilities:
Electricity Available, Natural Gas Available
Zoning:
MDR

Materials & Systems

Roof:
Asphalt Shingle
Exterior:
Vinyl Siding
Floors:
Carpet, Vinyl
Foundation:
Poured Concrete
Heating:
Forced Air, Natural Gas
Amenities:
Playground

Listing Info

Possession:
Negotiable
Your Agent
  • Daniel Cram

    Sutton Group Grande Prairie
    780-814-9482

    Email

    Ask a question
    • This site is protected by reCAPTCHA and the Google Privacy Policy and Terms of Service apply.
    Share This Listing
    Related Properties
    Categories
    • No categories