Property Details

723 Kenderdine Boulevard
Turtle Lake (A2280755)

$319,900
2
1
659 ft²
Loading Listing...

Loan Term
Interest Rate
Loan Amount
Annual Tax
Ann. Insurance

* Amounts are estimates only. Final payment amounts may vary.

Description

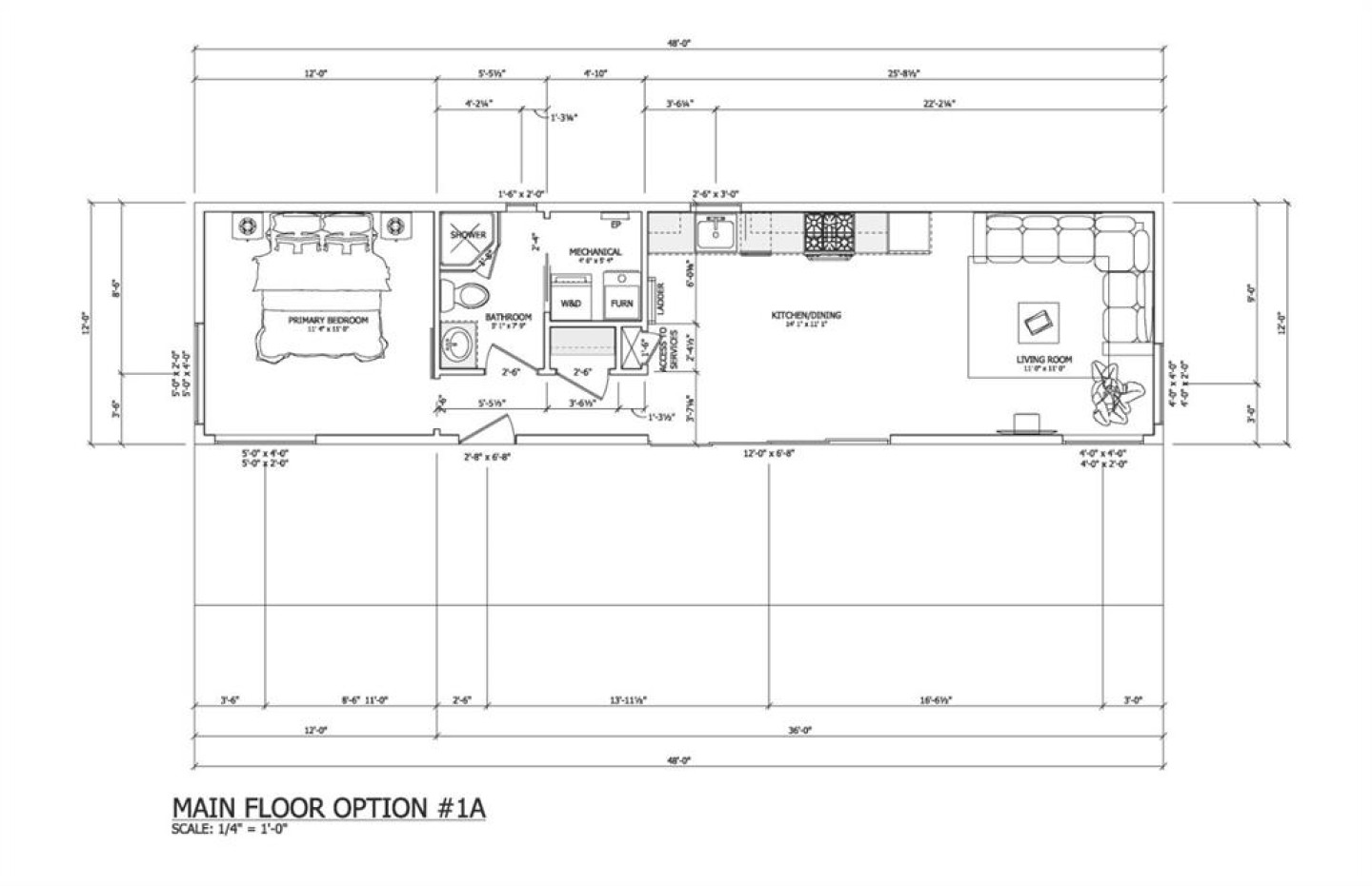
723 Kenderdine Boulevard – Sunset View Beach Modern design meets lakeside living at Sunset View Beach, just steps from the waterfront. This 12’ x 48’ modular home is built on a screw pile foundation and offers an efficient, thoughtfully designed layout, ideal as a recreational retreat or seasonal getaway. The home features 2 bedrooms, luxury vinyl plank flooring, and a warm, contemporary finish with shiplap pine ceilings and walls. The kitchen and bathroom feature quartz countertops, and the bathroom includes a tile-surround shower with a glass door. Custom millwork in the bedrooms adds smart storage, while the loft provides extra sleeping or storage space. In-home laundry adds everyday convenience. Comfort is provided by an air-source heat pump with a backup electric furnace, offering efficient year-round climate control. Triple-glazed windows further enhance energy efficiency. A major value-add: the lot already has septic, power, and water installed, reducing setup time and costs. The modern exterior and clean lines complement the natural beach setting, making this a turnkey opportunity in a desirable waterfront community.

Property details

Basic Info

MLS® #
A2280755
Property Type:
Residential
Subtype:
Detached
Subdivision:
NONE
Price
$319,900
Sale/Lease:
For Sale
Size:
659 sq.ft.
Bedrooms:
2
Bathrooms:
1
Year Built:
2026 (0 years old)

Building Info

New Construction:
Yes
Structure Type:
House
Building Style:
1 and Half Storey
Garage:
No
Parking:
None
Basement:
No
Features:
See Remarks
Inclusions:
n/a
Appliances:
None
Laundry:
Main Level
Exterior Features:
None
Patio/Porch Features:
None

Neighborhood Info

Nearby Amenities:
Lake

Lot / Land Info

Lot Size:
0.27 acres
Lot Features:
Rectangular Lot, Treed
Zoning:
REC

Materials & Systems

Roof:
Metal
Exterior:
Metal Siding ,Wood Frame
Floors:
Vinyl
Foundation:
None
Heating:
Baseboard, Electric
Cooling:
None
Amenities:
Lake

Listing Info

Possession:
Negotiable
Your Agent
  • Daniel Cram

    Sutton Group Grande Prairie
    780-814-9482

    Email

    Ask a question
    • This site is protected by reCAPTCHA and the Google Privacy Policy and Terms of Service apply.
    Share This Listing
    Related Properties
    Categories
    • No categories